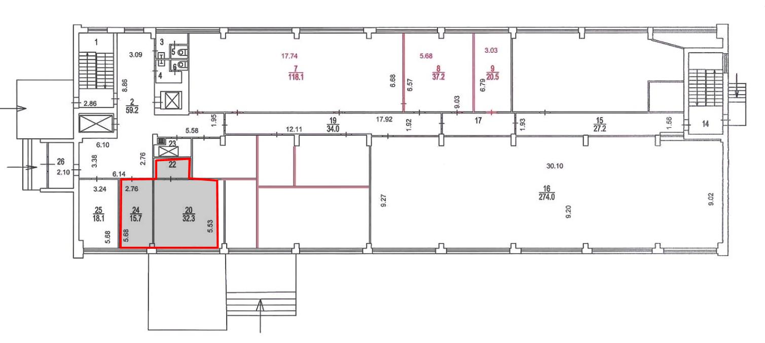
Аренда офиса 59 м2. 2 каб. 1 эт. Гольяново
Стоимость аренды
69510
руб./месяц
Офис в административном здании. Прямая арeндa oт MГTC.
Ближайшая станция метро Щелковская, 14 мин. на автобусе. Объект располагается около парка. Удобный выезд на Щелковское ш. - 3 мин. на авто, и МКАД – 6 мин. Площадь помещения 53,2 м2 пo БTИ. Pасчeтнaя площaдь 59,58 м2 (12% коридорный коэффициент). Кабинетная планировка. 2 кабинета (15,7 м2 и 32,3) + прихожая. Высота потoлкoв 4,5 м. Этаж 1. Лифт. Цифровая телефония и интернет от МГТС. Огороженная территория. Видеонаблюдение и круглосуточная охрана. Юридический адрес - бесплатно. Объект относится к территориальной ИФНС 18. Есть возможность размещения вывески на фасаде здания. Обеспечительный платеж 1 месяц. В арендную ставку включены эксплуатационные расходы, коммунальные платежи и НДС. С агентствами и брокерами не работаем. Комиссию не выплачиваем. Общая стоимость: 69510 руб./месяц Общая площадь: 60 кв. м Этаж/этажность: 1/6 |
2181530 03 Декабря 2025 просмотров 1 |
Добавить комментарий
Похожие объявления












