Помещение свободного назначения
Цена продажи
55000000 руб.
Г. Москва, ЮВАО, район Люблино, Люблинская улица, 25/1. Ближайшие станции метро Текстильщики 850 метров ( 8 мин. пешком, 1 остановка на автобусе).
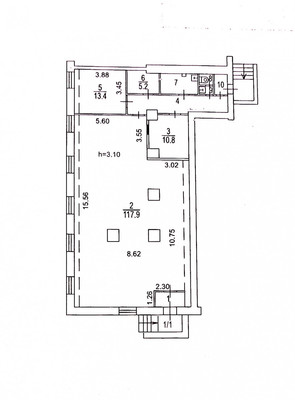
Ключевое преимущество: Первая линия домов! Помещение выходит прямо на Люблинскую улицу, напротив — Люблинский рынок.· Проходимость: Очень высокая за счет интенсивного автомобильного и пешеходного трафика. Парковка:· Рядом с помещением организована бесплатная парковка для клиентов и сотрудников.Есть два входа:отдельный с улицы и запасной со двора. Характеристики помещения:· Общая площадь: 170 кв. м.· Планировка: Состоит из 10 изолированных помещений, что идеально для зонирования (торговый зал, склад, административные кабинеты, комната отдыха).· Коммуникации: В наличии «мокрая точка» (подведена вода и канализация).· Входы: Два входа — парадный с улицы для клиентов и запасной со двора для удобной разгрузки товара. Помещение продается вместе с действующим бизнесом ИЛИ как объект недвижимости без бизнеса.· Готовая, успешная аптека с наработанным клиентским потоком.· Универсальная планировка подходит для других видов бизнеса: магазин продуктов, бытовой химии, салон связи, кафе и др. Почему это выгодное предложение?· Раскрученное место с высоким трафиком.· Готовый бизнес с немедленным выходом на доход.· Универсальное помещение с двумя входами и всей необходимой инфраструктурой Арт. 122874738 #8886099# Общая стоимость: 55000000 руб./месяц Этаж/этажность: 1/5 Агентам: Не звонить |
2179399 23 Октября 2025 просмотров 40 |
Добавить комментарий
Похожие объявления


















