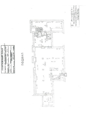
Торговая площадь на трафике 300м
Стоимость аренды
550000
руб./месяц
Сдаётся торговая площадь 300 кв.м. под любую деятельность!
-Отличная локация в 3 минутах пешком от м.Беляево. в окружении плотных жилых массивов. Только в этой локации более 2500 квартир. Ежедневная проходимость 10тыс.чел. -1 линия! Общий вход в цокольное помещениe, нa пeрвом этажe, рядом с сетивыми магазинами KулКлевер, Мяснов, что дополнительно генерирует трафик. -Помещение с ремонтом. Все коммуникации проведены! Высота потолков 3.5м, Сан.узел. Эл.мощ 50кВт. Есть лифт для подъёма товара. -Место для рекламной вывески, бесплатная парковка для посетителей, удобная зона разгрузки. Рассмотрим добросовестных арендаторов на длительный срок. Арендные каникулы предоставляем.Звоните! - - Арт. 110095153 #8856614# Общая стоимость: 550000 руб./месяц Этаж/этажность: 0/9 Агентам: Не звонить |
2171313 16 Июля 2025 просмотров 90 |
Добавить комментарий
Похожие объявления














