Москва
выбрать Метро
Сдам
Сниму
Продам
Куплю
         Площадь:
от:

до:
кв.м.
         Стоимость:
от:

до:
руб.
Показать

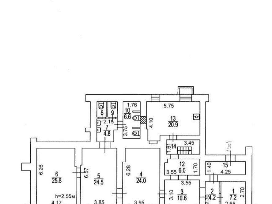
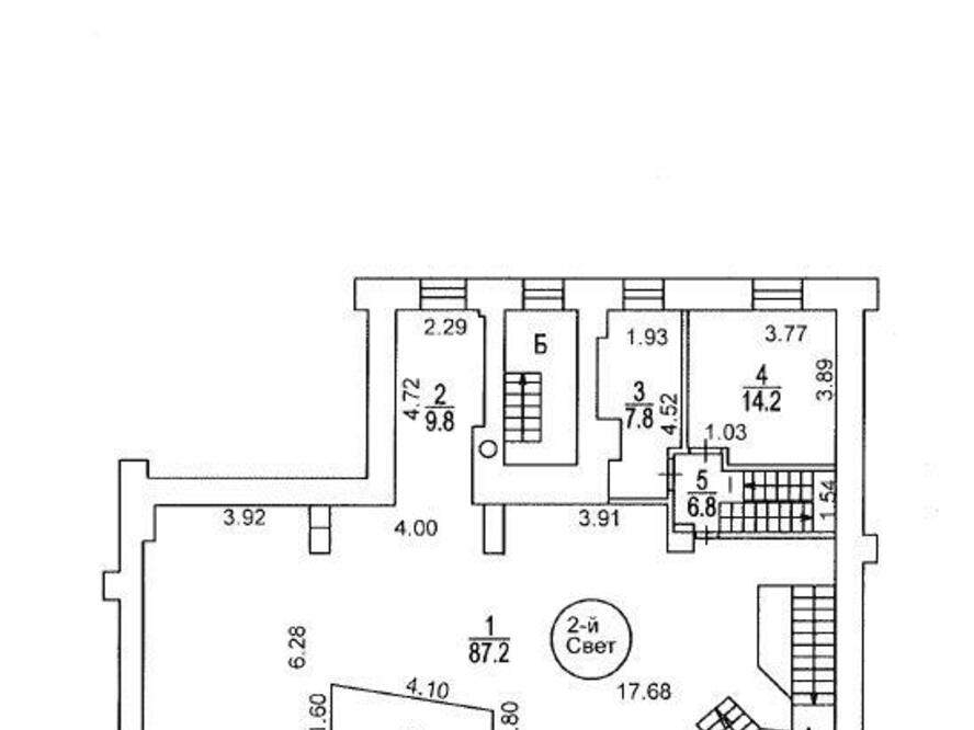
Торговое помещение 448.8 м2 в аренду

Стоимость аренды 1892440 руб./месяц
Предлагаю в аренду стрит-ритейл площадью 448.8 м2, в прямую аренду, на любой срок с предоплатой за 1 месяц. Помещение располагается в 8-этажном торгово-общественном центре м. Смоленская, район города - Арбат.
Помещение располагается на 1 этаже здания.
Возможное назначение помещения - прочее, высота потолков 4 м, здание на первой линии.

Общая стоимость: 1892440 руб./месяц
Общая площадь: 449 кв. м
Этаж/этажность: 1/8


Платонова Елена Николаевна т. (499) 5000005



Расскажи об этом объявлении:

 facebookFacebook    twitterTwitter    в контактеВ Контакте  
2178052
14 Октября 2025
просмотров 1



  • test
  • test
  • test
  • test
  • test
  • test

Добавить комментарий



Похожие объявления





Отправка сообщения хозяину объявления: №
Пожаловаться на объявление: №