Москва
выбрать Метро
Сдам
Сниму
Продам
Куплю
         Площадь:
от:

до:
кв.м.
         Стоимость:
от:

до:
руб.
Показать

Три входа

Стоимость аренды 1200000 руб./месяц
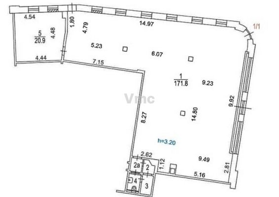
Предлагается отличный стрит на Сретенке, одной из самых интенсивных трафиков в Москве. Торговая площадь с прекрасной зальной планировкой, три отдельных входа ( два входа со Сретенки, один с Колокольников пер. На первой линии домов с витринными окнами по всему периметру, отдельный парадный вход с улицы Сретенка, высокие потолки 3.2 метра. Высокие рекламные возможности.элект мощ 41.кВт . Большой автомобильный и пешеходный трафик. Долгосрочный договор. под субаренду.каникулы обсуждаются. Собственник УСН. Помещение оснащено системой приточно- вытяжной вентиляции, центральным кондиционированием и отоплением. Кухонной вытяжки нет и нет возможности. Подходит под много чего. Кроме общепита с кухней полного цикла .
#8845190#


Общая стоимость: 1200000 руб./месяц
Этаж/этажность: 1/4
Агентам: Не звонить


г. Москва
Сретенский бульвар
7 минут пешком

Сретенка улица, 9

Геннадий Vmestate т. +7(967)093-77-44



Расскажи об этом объявлении:

 facebookFacebook    twitterTwitter    в контактеВ Контакте  
2178765
16 Октября 2025
просмотров 4





  • test
  • test
  • test
  • test
  • test
  • test
  • test
  • test

Добавить комментарий



Похожие объявления





Отправка сообщения хозяину объявления: №
Пожаловаться на объявление: №