Предлагается в аренду офисное помещение в тдк «Смоленский пассаж»,
Стоимость аренды
1700000
руб./месяц
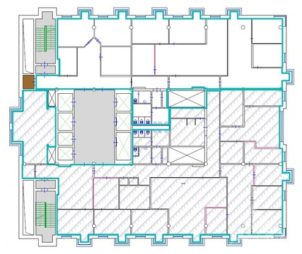
Предлагается в аренду офисное помещение в тдк «Смоленский пассаж», расположенный на внешней стороне Садового кольца, хорошо известном москвичам дорогими бутиками и офисами компаний крупного бизнеса. Прекрасная транспортная доступность. Высокий пешеходный траффик. Офис расположен на 13 этаже 16-этажного здания класса «А» 1998 года постройки. Имеется подземный многоуровневый паркинг. Хорошо развитая инфраструктура – кафе, рестораны, салоны красоты. В двух минутах пешком станция метро «Смоленская». Общая площадь помещения смешанной планировки 601,9 квадратных метра, включая кабинеты и залы. Есть несколько санузлов, переговорная комната, комната приема пищи, ресепшн. Высота потолков 3 метра. Центральное кондиционирование и приточно-вытяжная вентиляция. Системы противопожарной сигнализации и автоматического пожаротушения. ii-ая категория безопасности электроснабжения. Оптико-волоконные телекоммуникации, выделенные линии Интернет. Арендатор самостоятельно заключает договор с провайдером на оказание телекоммуникационных услуг на выбор: Вымпелком, мтс, Гарс-Телеком, Тайм Лайн, все без эксклюзива. Подземный, отапливаемый паркинг на 400 машино-мест по цене за 1 машино-место в месяц, не включая ндс. Долгосрочный договор 3 – 5 лет; Коммунальные платежи – оплачиваются дополнительно; Гарантийный взнос – 2 месяца аренды. Арендная ставка без ндс. Прямая аренда с собственником. Без комиссии.
Общая стоимость: 1700000 руб./месяц Этаж/этажность: 13/16 Агентам: Не звонить |
1382686 01 Июня 2017 просмотров 291 |
Добавить комментарий
Похожие объявления












