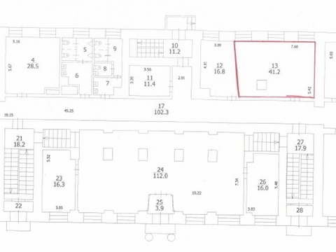
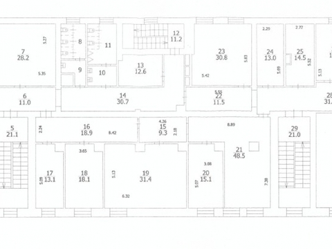
Id 4121. Отделка: Выполнена стандартная офисная отделка. Планировка:
Стоимость аренды
4960000
руб./месяц
Id 4121.Отделка: Выполнена стандартная офисная отделка.Планировка: Коридорная.Парковка: Предлагается 15 м/м на огороженной територии.Торг возможен!
Общая стоимость: 4960000 руб./месяц Этаж/этажность: 1/ Агентам: Не звонить |
1470090 12 Октября 2017 просмотров 151 |
Добавить комментарий
Похожие объявления

















