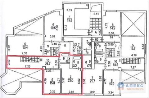
Лот №228570 Предлагается в аренду трех уровневый блок на 9-11-ом
Стоимость аренды
437000
руб./месяц
Лот №228570 Предлагается в аренду трех уровневый блок на 9-11-ом этаже, кабинетная планировка, сан.узел, качественный ремонт. Помещение с ремонтом. Телекоммуникации. Лифты – 2 otis. Вентиляция: Приточно-вытяжная. Кондиционирование: Центральная система кондиционирования. Система бесперебойного электроснабжения и вентиляции. Сигнализация, Центральная система управления зданием. Телефония и Интернет: оптоволокно «Совинтел», ооо «Эквант» торговая марка «Orange Business Services», «Ростелеком».
БЦ «Тверской» класса «В+», Главный вход со стороны Козицкого переулка. Ближайшая станция метро: Чеховская, 3 минуты от метро Охрана: Круглосуточная охрана. Система видеонаблюдения и пропускная система доступа на объект. Тип договора: Прямая аренда. Срок аренды: от 11 месяцев. Депозит 1 месяц. Подземный паркинг в месяц, включая ндс. Каникулы или ремонт обсуждаются. Стоимость - в месяц, вкл. ндс за весь блок ндс оплачивается дополнительно. В цену включено: коммунальные расходы, эксплуатационные расходы. В цену не включено: затраты на электричество, уборка. Михаил Вячеславович, доб. 182, лот №228570 Общая стоимость: 437000 руб./месяц Этаж/этажность: 9/ Агентам: Не звонить |
1555675 22 Марта 2018 просмотров 133 |
Добавить комментарий
Похожие объявления










