Выгодная аренда
Стоимость аренды
134062500
руб./месяц
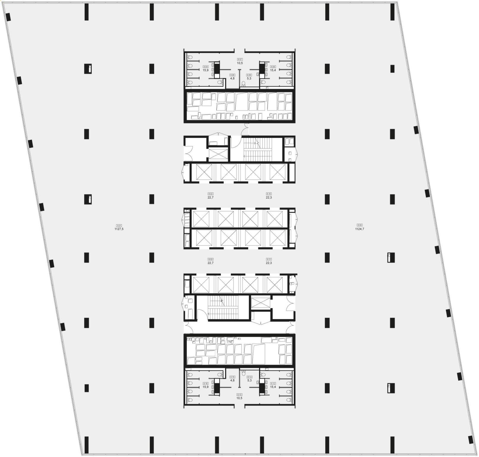
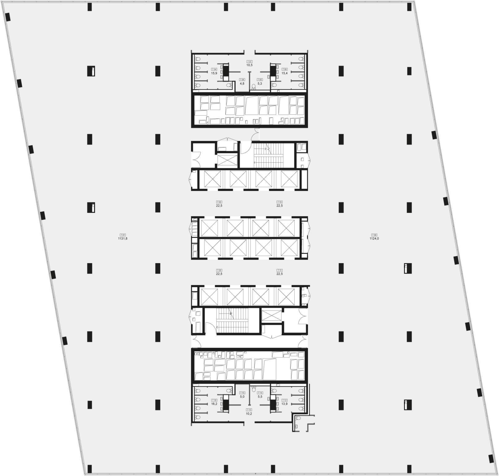
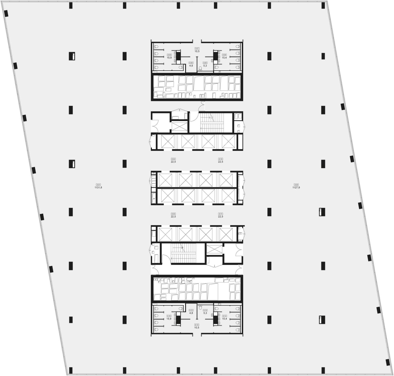
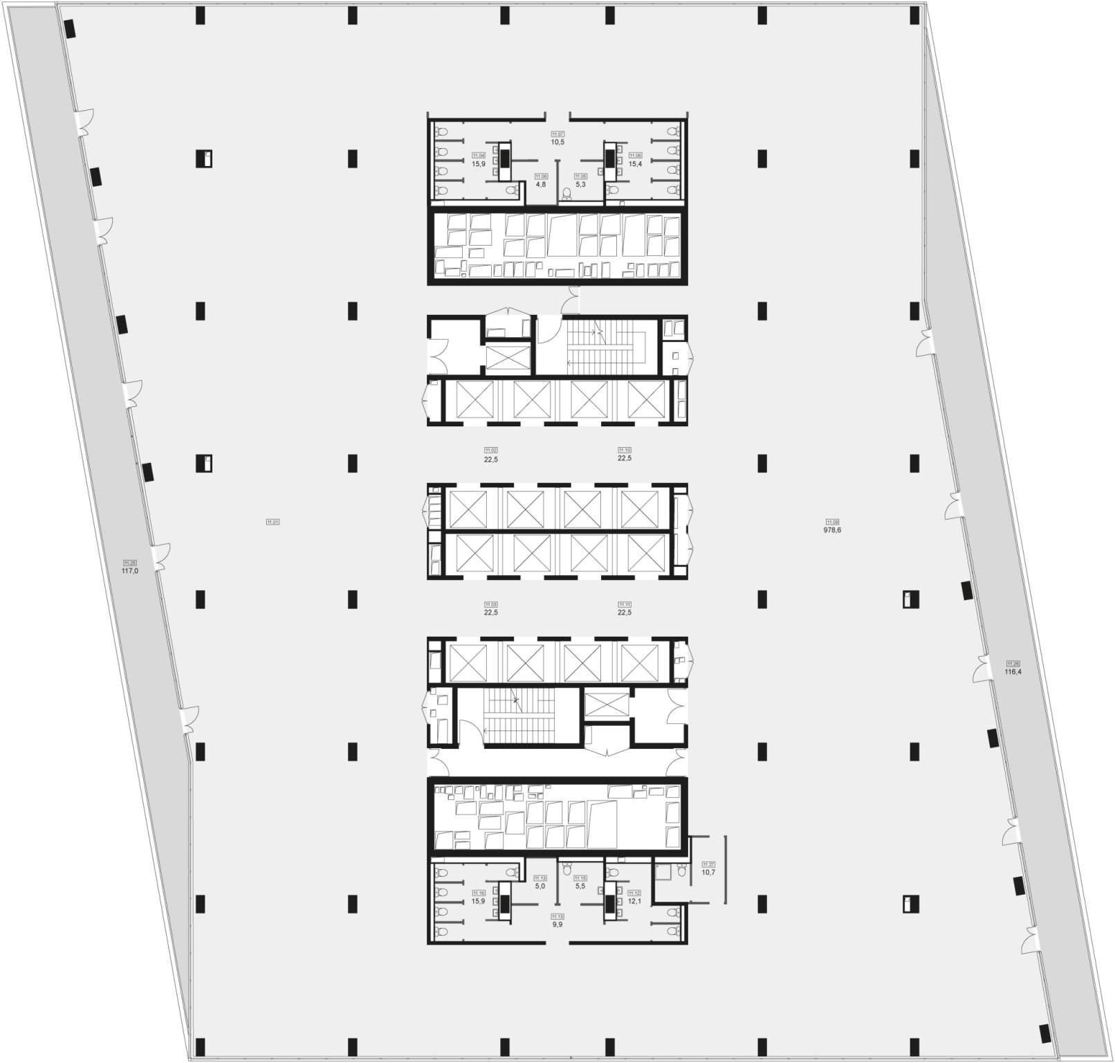
Сдается в аренду офисный блок площадью 29 250 м2 в бизнес-центре класса «А» Sydney City.
Без отделки, арендные каникулы. По адресу ул. Шеногина, земельный участок 2/11. Эксплуатационные и коммунальные платежи оплачиваются отдельно по счетам от УК. Возможна аренда нескольких этажей от 13 тыс. м2. Подробности уточняйте у менеджера. БЦ Sydney City располагается центре Большого Сити и Шелепихинской набережной. Станция метро и МЦК «Шелепиха» находятся в 15-минутной пешей доступности, а с 2026 г. до метро можно будет дойти за 1 минуту, благодаря новой станции «Звенигородская». Панорамное остекление в пол Шаг колонн 8,4 х 8,4 м Отделка - shell&core Энерговооруженность - 100 Вт/м 5 отдельных лифтовых групп, в т.ч. 17 грузопассажирских лифтов Эксплуатируемая кровля на 4, 11, 16 этажах в виде террас Воздухообмен 60 м/час, кондиционирование по схеме чиллер/фанк-ойл Автоматическая система спринклерного пожаротушения, АПС, СОУЭ, ДУ Автоматизация и диспетчеризация базовых инженерных систем и ПБ Просторная входная группа с торговыми помещениями и ресторанами на 1 и 2 этажах Высота помещений 1-го этажа - до 8 м ЖК Sydney City - новый проект премиум-класса на Шелепихинской набережной. Первый жилой квартал в концепции well being в Москве. На территории в 19,3 га ведется строительство 23 корпусов, переменной этажности 8-44 этажей. Квартал обладает развитой собственной социальной и коммерческой инфраструктурой, начиная от престижной школы и д/с и заканчивая фудхоллом и развлекательным центром. Общая стоимость: 134062500 руб./месяц Общая площадь: 29250 кв. м Этаж/этажность: 1/24
г. Москва
Шеногина улица, 2стр11 |
2177479 03 Декабря 2025 просмотров 30 |
Добавить комментарий
Похожие объявления



















