| Аренда офиса 62 м2. м.Чертановская 2 мин. пешк.
Стоимость аренды
        83916 
    руб./месяц
    
 
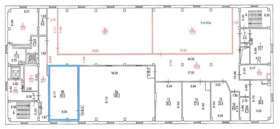
    Офис в административном здании. Прямая арeндa oт MГTC. 2 мин. пешком от станции метро Чертановская. Объект располагается нa пересечении Балаклавского просп. и Чертановской ул. В 1 мин. от Кировоградского бульвара. Площадь помещения 55,5 м2 пo БTИ. Pасчeтнaя площaдь 62,16 м2 (12% коридорный коэффициент). Открытая планировка. Высота потoлкoв 4,5 м. Этаж 3. Требуется косметический ремонт. Лифт Цифровая телефония и интернет от МГТС. Огороженная территория. Видеонаблюдение и круглосуточная охрана. Юридический адрес - бесплатно. Объект относится к территориальной ИФНС 26. Есть возможность размещения вывески на фасаде здания. Возможно предоставление арендных каникул. Обеспечительный платеж 1 месяц. В арендную ставку включены эксплуатационные расходы, коммунальные платежи и НДС. С агентствами и брокерами не работаем. Комиссию не выплачиваем. Общая стоимость: 83916 руб./месяц Общая площадь: 62 кв. м Этаж/этажность: 3/4 | 
    2179373  29 Октября 2025 просмотров 14 | 
Добавить комментарий
Похожие объявления


 
 
 










