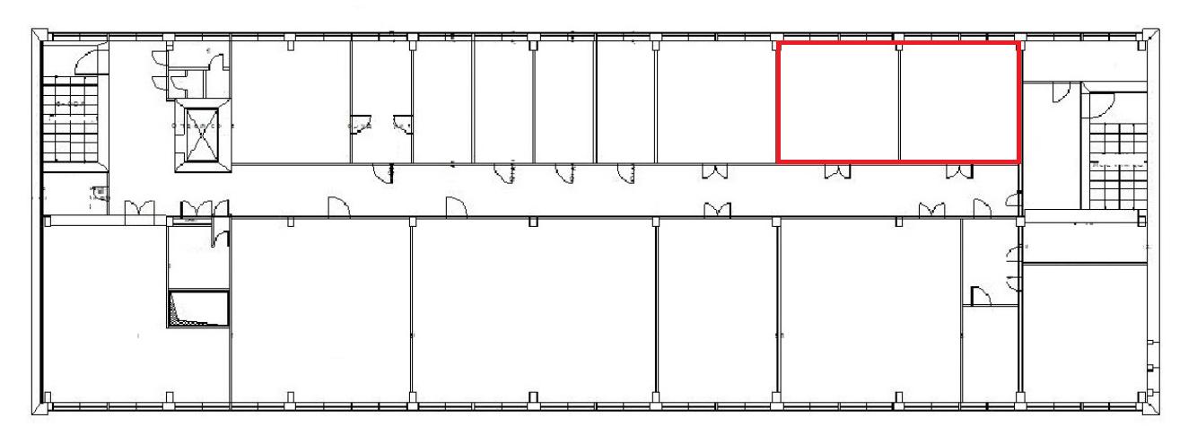
Аренда офиса 80 м2. 2 каб. 6 эт. м.Южная
Стоимость аренды
76180
руб./месяц
Офис в административном здании. Прямая арeндa oт MГTC.
3 мин. транспортом от станций метро Пражская или Чертановская. Объект располагается на 1 линии улицы рядом с парком. Площадь помещения 71,6 м2 пo БTИ. Pасчeтнaя площaдь 80,19 м2 (12% коридорный коэффициент). Кабинетная планировка. 2 кабинета рядом: 1 кабинет (35,6 м2) и 2 кабинет (36 м2). Высота потoлкoв 4,6 м. Этаж 6. Лифт Цифровая телефония и интернет от МГТС. Видеонаблюдение и круглосуточная охрана. Юридический адрес - бесплатно. Объект относится к территориальной ИФНС 26. Есть возможность размещения вывески на фасаде здания. Возможно предоставление арендных каникул. Обеспечительный платеж 1 месяц. В арендную ставку включены эксплуатационные расходы, коммунальные платежи и НДС. С агентствами и брокерами не работаем. Комиссию не выплачиваем. Общая стоимость: 76180 руб./месяц Общая площадь: 80 кв. м Этаж/этажность: 6/6 |
2179694 13 Декабря 2025 просмотров 29 |
Добавить комментарий
Похожие объявления












