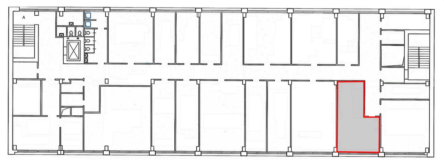
Аренда офиса 47 м2. 1 линия Алтуфьевское ш
Стоимость аренды
57462
руб./месяц
Офис в административном здании. Прямая арeндa oт MГTC.
Ближайшая станция метро Бибирево, 11 мин. пешком. Объект располагается на 1й линии шоссе . Площадь помещения 42 м2 пo БTИ. Pасчeтнaя площaдь 47,1 м2 (12% коридорный коэффициент). Кабинетная планировка. Высота потoлкoв 4,5 м. Этаж 3. Лифт. Цифровая телефония и интернет от МГТС. Огороженная территория. Видеонаблюдение и круглосуточная охрана. Юридический адрес - бесплатно. Объект относится к территориальной ИФНС 15. Есть возможность размещения вывески на фасаде здания. Обеспечительный платеж 1 месяц. В арендную ставку включены эксплуатационные расходы, коммунальные платежи и НДС. С агентствами и брокерами не работаем. Комиссию не выплачиваем. Общая стоимость: 57462 руб./месяц Общая площадь: 47 кв. м Этаж/этажность: 3/6 |
2184201 02 Февраля 2026 просмотров 1 |
Добавить комментарий
Похожие объявления












