Помещение
Стоимость аренды
1800000
руб./месяц
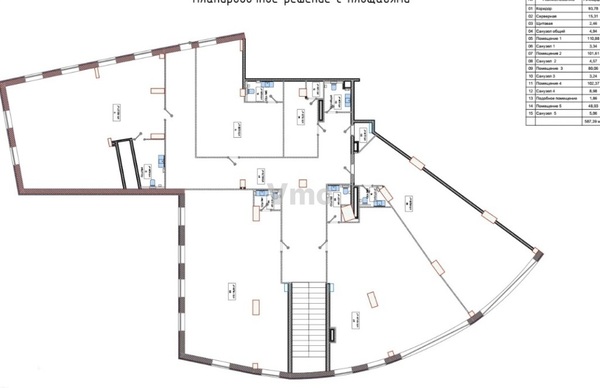
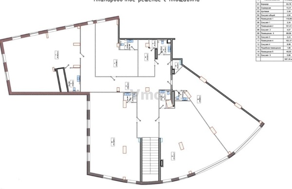
Помещение с отдельным входом с 1го этажа летница на 2й этаж в 2х этажной пристройке в ЖК, вывекса видна с улицы, с свежим качественным ремонтом.. под офис, магазин, шоурум, клинику общепит. В здании установлена эффективная приточно-вытяжная вентиляция для комфортной работы. Есть наземная и подземная парковка. Договор с собственником помещения. Без комиссии. Многоквартирный жилой комплекс расположен в шаговой доступности от метро. Удобная транспортная доступность. Парковка у здания за шлагбаумом. Кондиционирование: Сплит-системы. Безопасность: Круглосуточный доступ, Система пожаротушений, Видеонаблюдение. Парковка: Наземная. Описание помещения: Планировка: смешанная. Типовой ремонт.
#8905512# Общая стоимость: 1800000 руб./месяц Этаж/этажность: 1/2 Агентам: Не звонить |
2185618 21 Февраля 2026 просмотров 9 |
Добавить комментарий
Похожие объявления
















