Сдается коммерческое помещение,
Стоимость аренды
2300000
руб./месяц
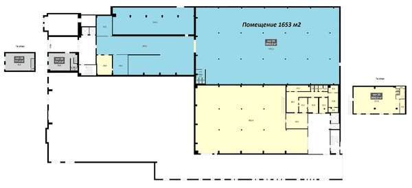
Предлагается в аренду нежилое помещение, склад общей площадью 1653 м2 по адресу: шоссе Энтузиастов, 2 стр. 12, рядом с северо-восточной хордой, связывающей три округа Москвы: север, восток и юго-восток, в пешей доступности от станции метро шоссе Энтузиастов.
Склад располагается в офисно-складском комплексе в престижном районепервый этаж потолки 6 м теплый склад, отопление через систему вулкан (прогретая вода в горячий воздух) офисные помещения отапливаются через центральное отопление, своя котельная въезд внутрь помещения для большегрузных машин и длинномеров производственно-складская площадь 1 653 м2 есть возможность выделить офисы в отдельном помещении доступ 24/7 теплый склад с антипылевыми полами наземная парковка близость к основным транспортным развязкам шаговая доступность от метро, 7 минут пешком возможность добраться без светофоров в любой район города центральные коммуникации круглосуточное наблюдение и охрана Помещения свободного назначения подходят для складирования, а также под производство. Общая площадь и размеры обсуждаются индивидуально. В наличии мощная электросеть — 4000 кВт, что позволяет подключать современное оборудование. Также есть городская канализация и все необходимые коммуникации, что обеспечивает комфортное и эффективное использование пространства. Идеальное решение для компаний, ищущих удобное и оснащённое помещение недалеко от транспортных магистралей. Есть возможность увеличения помещения на 1653 м2.МАП 2 300 000 рублей.УСН16700 рублей 1 м2 в год. Звоните, записывайтесь на показ.Рады ответить на ваши вопросы с 9:00 до 21:00 часа. Арт. 119183202 #8882877# Общая стоимость: 2300000 руб./месяц Этаж/этажность: 1/3 Агентам: Не звонить |
2177868 07 Октября 2025 просмотров 45 |
Добавить комментарий
Похожие объявления
























