Склад в центре рядом с трассой
Цена продажи
129735000 руб.
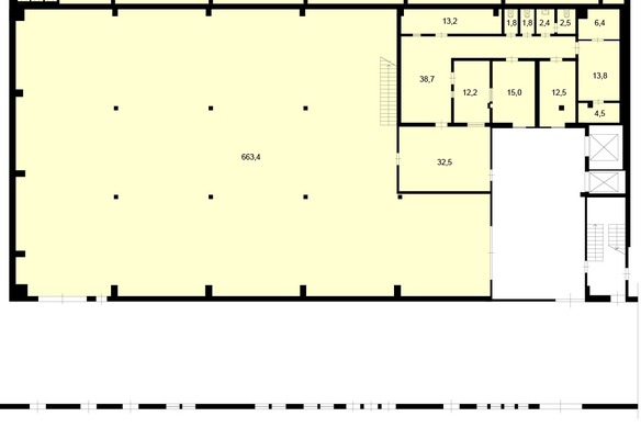
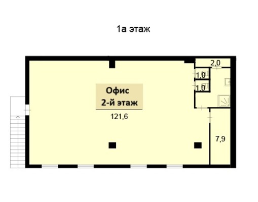
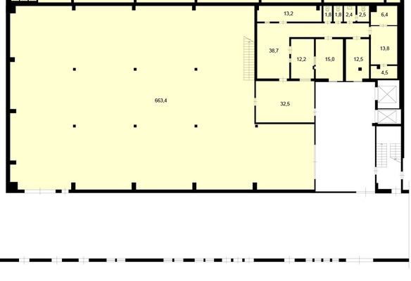
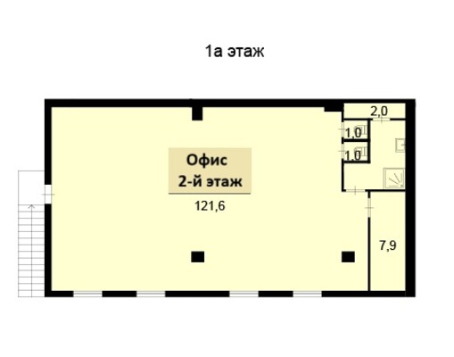
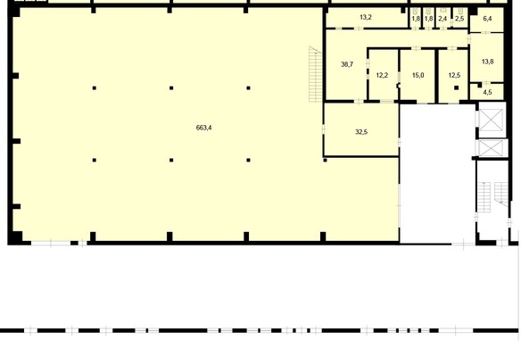
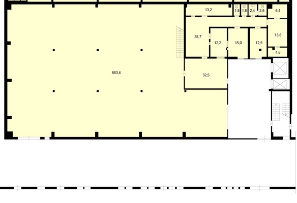
Предлагается в покупку нежилое помещение, склад общей площадью 961 м2 по адресу: шоссе Энтузиастов, 2 стр. 12, рядом с северо-восточной хордой, связывающей три округа Москвы: север, восток и юго-восток, в пешей доступности от станции метро шоссе Энтузиастов.
Склад располагается в офисно-складском комплексе в престижном районепервый этаж потолки 6 м теплый склад, отопление через систему вулкан (прогретая вода в горячий воздух) офисные помещения отапливаются через центральное отопление, своя котельная въезд внутрь помещения для большегрузных машин и длинномеров производственно-складская площадь 663,4 м2 офисная часть 250 м2 доступ 24/7 теплый склад с антипылевыми полами наземная парковка близость к основным транспортным развязкам шаговая доступность от метро, 7 минут пешком возможность добраться без светофоров в любой район города центральные коммуникации круглосуточное наблюдение и охрана Помещения свободного назначения подходят для складирования, а также под производство. Общая площадь и размеры обсуждаются индивидуально. В наличии мощная электросеть — 4000 кВт, что позволяет подключать современное оборудование. Также есть городская канализация и все необходимые коммуникации, что обеспечивает комфортное и эффективное использование пространства. Идеальное решение для компаний, ищущих удобное и оснащённое помещение недалеко от транспортных магистралей. Есть возможность приобретения производственно-складского помещения с высотой потолков 11 метров до 2700 м2 (помещение 1 и помещение 2).Земельный участок 24115 м2 в аренде на 25 лет до 2030 года с последующей пролонгацией. Продажа с НДС.Быстрый выход на сделку. Готовы предложить юридическое оформление и сопровождение сделки.Звоните, записывайтесь на показ.Рады ответить на ваши вопросы с 9:00 до 21:00 часа. Арт. 118031805 #8881433# Общая стоимость: 129735000 руб./месяц Этаж/этажность: 1/1 Агентам: Не звонить |
2177427 30 Сентября 2025 просмотров 30 |
Добавить комментарий
Похожие объявления















