Склад в центре рядом с трассой
Цена продажи
525000000 руб.
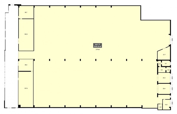
Предлагается в покупку нежилое помещение, склад общей площадью 3181.8 м2 по адресу: шоссе Энтузиастов, 2 стр. 12, рядом с северо-восточной хордой, связывающей три округа Москвы: север, восток и юго-восток, в пешей доступности от станции метро шоссе Энтузиастов.
Склад располагается в офисно-складском комплексе в престижном районепервый этаж потолки от 11 до 12 м въезд внутрь помещения для большегрузных машин и длинномеров доступ 24/7 теплый склад с антипылевыми полами склад действующий, есть арендаторы. наземная парковка. близость к основным транспортным развязкам. шаговая доступность от метро возможность добраться без светофоров в любой район города центральные коммуникации круглосуточное наблюдение и охрана Помещения свободного назначения подходят для складирования, а также под производство. Общая площадь и размеры обсуждаются индивидуально. В наличии мощная электросеть — 4000 кВт, что позволяет подключать современное оборудование. Также есть городская канализация и все необходимые коммуникации, что обеспечивает комфортное и эффективное использование пространства. Идеальное решение для компаний, ищущих удобное и оснащённое помещение недалеко от транспортных магистралей. Есть возможность приобретения помещения от 800 м2 (помещение 3 на плане).Земельный участок 24115 м2 в аренде на 25 лет до 2030 года с последующей пролонгацией. Продажа с НДС.Быстрый выход на сделку. Готовы предложить юридическое оформление и сопровождение сделки.Звоните, записывайтесь на показ.Рады ответить на ваши вопросы с 9:00 до 21:00 часа. Арт. 123827575 #8887612# Общая стоимость: 525000000 руб./месяц Этаж/этажность: 1/1 Агентам: Не звонить |
2179905 30 Октября 2025 просмотров 26 |
Добавить комментарий
Похожие объявления












