Пищевое Производственное
Стоимость аренды
1500000
руб./месяц
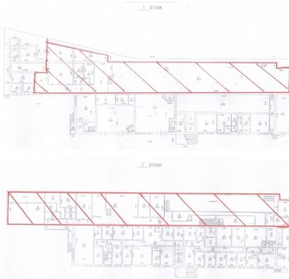
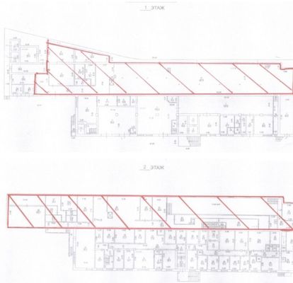
Производство пищевое, готовка под общепит. производственное помещение площадью 1244,7кв.м. Этаж 1000м2; 2 Этаж 430м2. Отдельный вход. Место для погрузки. Два этажа. Потолок 6 м. Электрическая мощность до 4 мВт.,есть мощная вытяжка. Электрический подъемник на 2й этаж на 400кг. Перед зоной погрузки/выгрузки собственная парковка. Отлично подойдет для пищевого производства. Коммунальные и эксплуатационные платежи оплачиваются отдельно. Офисно-складской центр на Талалихина расположен в шаговой доступности от метро и МЦД. Удобная транспортная доступность. Налоговая: 22. Лифты: Нет. Вентиляция: Приточно-вытяжная. Кондиционирование: Сплит-системы. Безопасность: Система пожаротушений. Парковка: Наземная. Описание помещения: Часть здания под пищевое производство. Подъемник на 400 кг. Высота потолков 3 м. На площади 50 м2 высота 6 м. Электричества 600 кВт. Планировка: смешанная. Тип, парковка своя. налогообложения: УСН.
#8894794# Общая стоимость: 1500000 руб./месяц Этаж/этажность: 2/2 Агентам: Не звонить |
2182114 10 Декабря 2025 просмотров 1 |
Добавить комментарий
Похожие объявления































