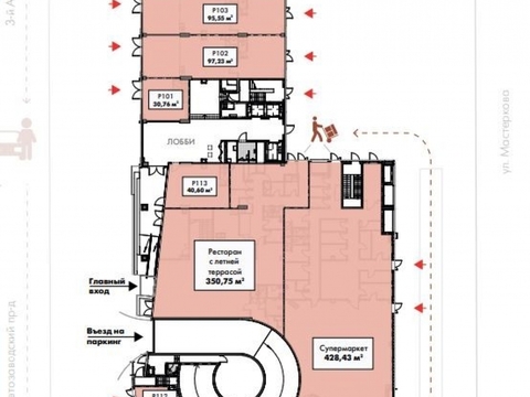
Id 13109. Местоположение здания: Здание расположено в Даниловском
Цена продажи
98868000 руб.
Id 13109. Местоположение здания: Здание расположено в Даниловском районе, рядом с набережной Москвы-реки, в 200 м от ст. м. «Автозаводская» и неподалеку от одноименной станции мцк. Планировка: Открытая. Дополнительная информация: итейл под супермаркет на 1 этаже в ЖК Story. Сдача 4 кв 2019г. Эксклюзив!
Общая стоимость: 98868000 руб./месяц Этаж/этажность: 1/ Агентам: Не звонить |
1606458 02 Августа 2018 просмотров 126 |
Добавить комментарий
Похожие объявления








