Продается ПСН 130.8 м2
Цена продажи
21128000 руб.
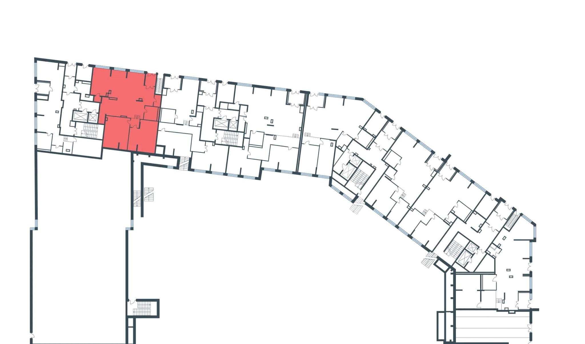
Предлагается коммерческое помещение площадью 130,8 м2 на 1-м этаже 15-этажного жилого дома в ЖК «Москвичка».
Основные преимущества: отдельный вход; место под вывеску; витринное остекление; круглосуточный доступ; помещение без ремонта, что позволяет обустроить его по своему вкусу и требованиям бизнеса; метро в пешей доступности - от 7 минут до м. Коммунарка; помещение находится в жилом комплексе комфорт-класса; развитый район с насыщенной инфраструктурой и активным пешеходным трафиком. Технические характеристики: наличие всех необходимых коммуникаций - водоснабжение, канализация, электроснабжение. Условия: помещение предоставляется без посредников, напрямую от собственника - компании «Аструм Недвижимость», которая управляет коммерческой инфраструктурой жилых комплексов ГК «Гранель». ЖК «Москвичка» - это уютная локация, рассчитанная на проживание более 12 тысяч человек, большинство из которых - молодые и активные люди в возрасте от 20 до 50 лет. Уже сейчас в комплексе успешно работают множество бизнесов и якорные арендаторы. Среди них: продуктовые магазины, кафе, салоны красоты и другие предприятия сферы услуг. Расположение комплекса в 700 метрах от станции метро «Коммунарка» обеспечивает отличный транспортный доступ, что позволяет жителям микрорайона добираться до центра столицы быстро и удобно. Весь микрорайон активно развивается и расширяется, создавая отличные перспективы для бизнеса. Наши менеджеры помогут вам подобрать наиболее подходящее помещение для вашего бизнеса. Звоните и узнайте подробности! Общая стоимость: 21128000 с НДС Общая площадь: 131 кв. м Этаж/этажность: 1/15
г. Москва
Василия Ощепкова улица, 1 |
2169851 07 Февраля 2026 просмотров 56 |
Добавить комментарий
Похожие объявления














