№3534 – уникальный номер помещения. Аренда помещения от собственника
Стоимость аренды
230000
руб./месяц
№3534 – уникальный номер помещения.
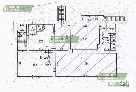
Аренда помещения от собственника (без комиссии); Арендные каникулы, скидки и индивидуальные улучшения - все обсуждается; Помещение находится на огороженной и охраняемой территории; Назначение: псн; Метро: Беговая, 3 минут пешком; Технические характеристики: Площадь в аренду: 190 м2; Возможна нарезка частями; Температурный режим: Отапливаемый (теплый); Этаж: -1; Высота потолка: 4 м; Пол: Плитка; Коммерческие условия: Арендная ставка:уб/м.кв/год (усн); Общая стоимость: 230000 руб./месяц Этаж/этажность: 1/ Агентам: Не звонить |
1711918 22 Марта 2019 просмотров 112 |
Добавить комментарий
Похожие объявления








