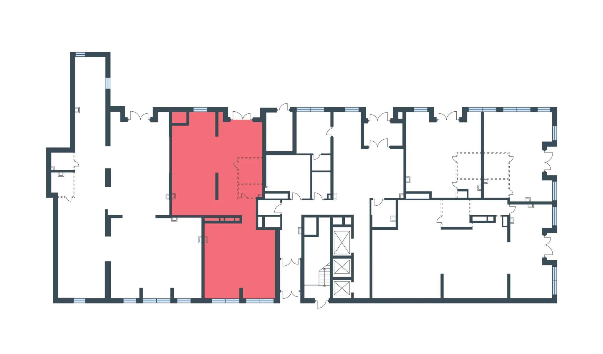
Аренда ПСН площадью 117.1 м2
Стоимость аренды
480110
руб./месяц
Сдаётся в аренду коммерческое помещение площадью 117,1 мна 1-м этаже жилого дома в ЖК «MYPRIORITY Дубровка».
Основные преимущества: Отдельный вход; Место под вывеску; Витринное остекление; Арендные каникулы; Помещение без ремонта, что позволяет обустроить его по своему вкусу и требованиям бизнеса; Наличие коммуникаций: водоснабжения, канализации, электроснабжения, отопления; Помещение находится в новом жилом комплексе бизнес-класса; Метро в пешей доступности; Развитый район с насыщенной инфраструктурой и активным пешеходным трафиком. Технические характеристики: наличие всех необходимых коммуникаций: водоснабжение, канализация, электроснабжение. Выделенная мощность - 23,4 кВт. Условия: помещение предоставляется без посредников, напрямую от собственника - компании «Аструм Недвижимость», которая управляет коммерческой инфраструктурой жилых комплексов ГК «Гранель». ЖК «MYPRIORITY Дубровка» расположен в ЮВАО Москвы, в шаговой доступности от метро «Дубровка». Это перспективное место для открытия бизнеса благодаря высокой транспортной доступности (рядом ТТК, станции метро и МЦК) и плотной жилой застройке. Комплекс сочетает современные архитектурные решения от бюро T+T Architects с динамичной урбанистической средой, что привлекает внимание как местных жителей, так и посетителей. На первых этажах комплекса представлены коммерческие помещения площадью от 26 до 302 кв. м. Каждое помещение имеет отдельный вход, витринное остекление и возможность гибкой планировки. Здесь можно открыть супермаркет, кафе, офис, магазин или предприятие сферы услуг. Высокий пешеходный трафик обеспечивается благодаря близости жилого комплекса и будущего крупного общественно-делового квартала. «MYPRIORITY Дубровка» - это не только комфортное место для жизни, но и отличная площадка для развития бизнеса. Наши менеджеры помогут вам подобрать наиболее подходящее помещение для вашего бизнеса. Звоните и узнайте подробности. Общая стоимость: 480110 руб./месяц с НДС Общая площадь: 117 кв. м Этаж/этажность: 1/30 |
2172849 12 Января 2026 просмотров 62 |
Добавить комментарий
Похожие объявления












