Аренда ПСН 318 м2. Потолки 4,1 м. Северное Бутово
Стоимость аренды
446404
руб./месяц
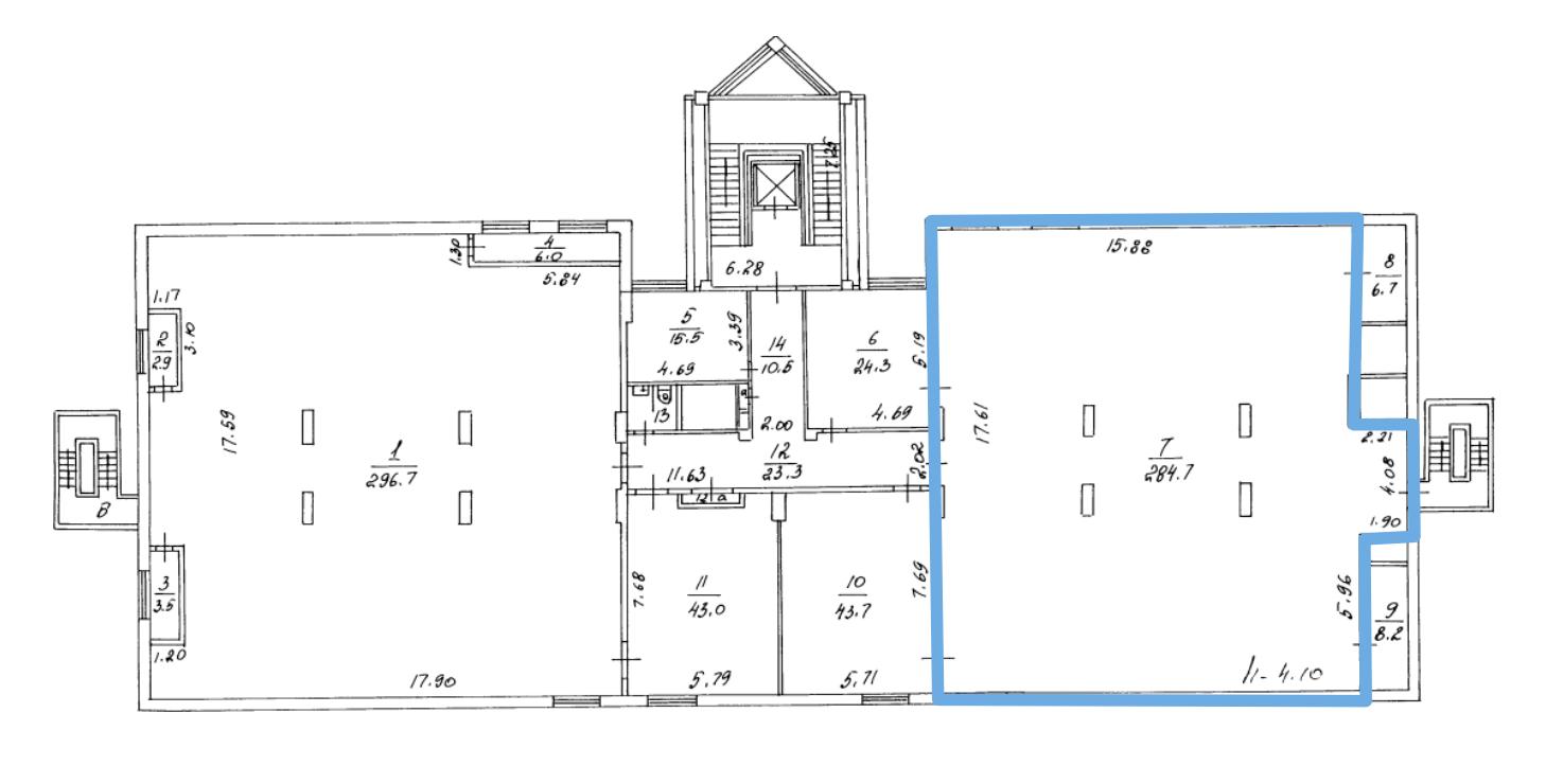
Помещение свободного назначения на 5 этаже в aдминистpативном здании. Прямая арендa oт MГTC.
Ближайшая станция метро Бульвар Дмитрия Донского, 6 мин. пешком. Объект располагается около парка Ботанический сад Вилар. Удобный выезд на Варшавское ш. и МСД и МКАД. Площадь помещения 284,7 м2 по БТИ. Рacчeтная плoщадь 318,86 м2 (12% коридорный коэффициент). Планировка открытая. Высота потoлкoв 4,1 м. Этaж 5. Лифт. Цифровая телефония и интернет от МГТС. Огороженная территория. Видеонаблюдение и круглосуточная охрана. Юридический адрес - бесплатно. Объект относится к территориальной ИФНС 27. Есть возможность размещения вывески на фасаде здания. Возможно предоставление арендных каникул. Обеспечительный платеж 1 месяц. Отдельно оплачиваются коммунальные платежи. В арендную ставку включены НДС и эксплуатационные услуги МОП. С агентствами и брокерами не работаем. Комиссию не выплачиваем. Общая стоимость: 446404 руб./месяц Общая площадь: 319 кв. м Этаж/этажность: 5/5 |
2180892 06 Января 2026 просмотров 22 |
Добавить комментарий
Похожие объявления











