Офис | Шоурум | Стрит ритейл
Цена продажи
26376000 руб.
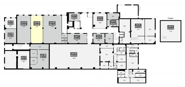
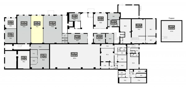
Предлагается в покупку нежилое помещение, офис общей площадью 73,20 м2 по адресу: шоссе Энтузиастов, 2 стр. 12, рядом с северо-восточной хордой, связывающей три округа Москвы: север, восток и юго-восток.
Склад располагается в офисно-складском комплексе в престижном районеотдельный вход с улицы витринные окна первый этаж высота потолков 4,5 м возможность завести мокрую точку в помещение доступ 24/7 наземная парковка близость к основным транспортным развязкам шаговая доступность от метро возможность добраться без светофоров в любой район города центральные коммуникации круглосуточное наблюдение и охрана Есть возможность приобретения складского помещения в данном комплексе от 30 м2 до 3000 м2.Земельный участок 24115 м2 в аренде. Продажа с НДС.Быстрый выход на сделку. Готовы предложить юридическое оформление и сопровождение сделки.Звоните, записывайтесь на показ.Рады ответить на ваши вопросы с 9:00 до 21:00 часа. Арт. 124133286 #8888601# Общая стоимость: 26376000 руб./месяц Этаж/этажность: 1/6 Агентам: Не звонить |
2180170 06 Ноября 2025 просмотров 1 |
Добавить комментарий
Похожие объявления
















