- !
160000000 .
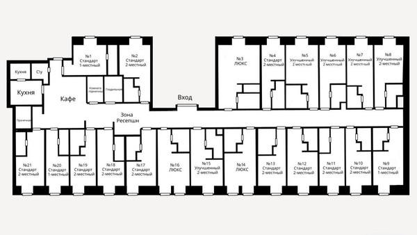
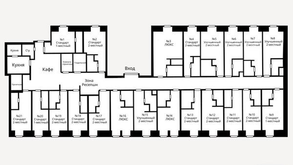
. 125474858 ! - 408 . 10 (, ) 5 . . :- (, , )- - 408.1 . ( 2 5- )- , - 21 - , , , , - - 5 - PMS- BNOVO
:- 8.5 - 86%- 4.8 / 5.0- - - - 4 700 6 500 ././- - - / ?- , - , - , :80% ( - ): ( ); ; 20% . :.. 900 .. 940 .. 1380 970 ...#8890117# : 160000000 ./ /: 2/5 : |
2180526 13 2025 1 |
































