Сдам коммерческое помещение 61.9 м2, Защитников Москвы пр-кт, 5, Москва г
Стоимость аренды
130000
руб./месяц
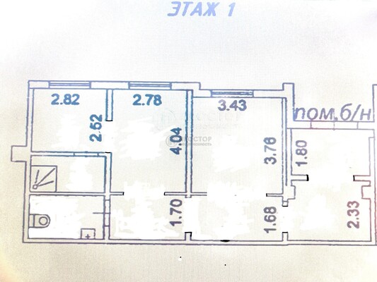
Код объекта: 1753530.<br/> Аренда напрямую от собственника коммерческого помещения свободного назначения в Москве.<br/><br/>Предлагаем в аренду просторное и функциональное коммерческое помещение площадью 61,9 кв. м по адресу: проспект Защитников Москвы, 5.<br/> Помещение на первом этаже с отдельным входом идеально подходит для различных видов бизнеса благодаря свободному назначению. Две мокрых точки. Удобное расположение, хороший пешеходный трафик.<br/>Собственник юр.лицо. На длительный срок. Каникулы предоставляем.
#8889020# Общая стоимость: 130000 руб./месяц Этаж/этажность: 1/17 Агентам: Не звонить
г. Москва
10 минут пешком , 5
Еленич Светлана Валерьевна
т. +7(495)921-21-84
|
2180203 07 Ноября 2025 просмотров 2 |
Добавить комментарий
Похожие объявления




















