Здание офис
Стоимость аренды
1652000
руб./месяц
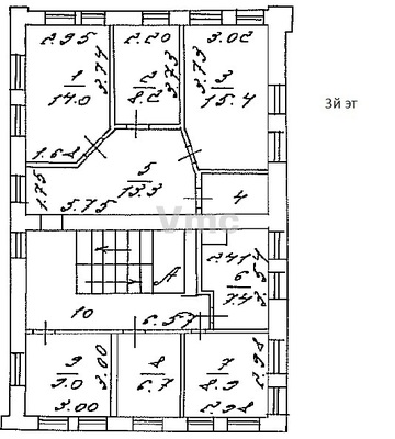
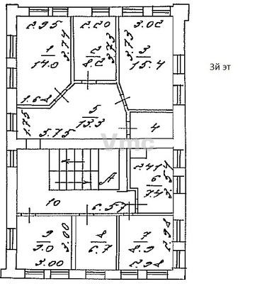
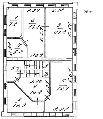
Здание, особняк, офис. Первая линия домов. Ближайшие станции метро: Цветной бульвар и Трубная. Презентабельная входная группа. Налоговая: 07. Лифты: Нет. Вентиляция: Приточно-вытяжная. Кондиционирование: Центральное. Безопасность: Система пожаротушений, Видеонаблюдение. Провайдеры: Коммерческие. Парковка: Многоуровневая. Описание помещения: Высота потолков - 3,00 м. Два независимых входа (главный вход на ресепшн и с парковки). С мебелью или без.. Планировка: кабинетная. Типовой ремонт. Мебель. Тип налогообложения: С НДС. Паркинг. Под офис, банк ( есть банковские ячейки). итд
#8891647# Общая стоимость: 1652000 руб./месяц Этаж/этажность: 1/3 Агентам: Не звонить |
2180917 21 Ноября 2025 просмотров 1 |
Добавить комментарий
Похожие объявления

















